A long garden in Wiltshire

This is the first of the nextdoor neighbours gardens to be built and was finished in March 2021. I have designed completely new back and front gardens plus all the planting for both the neighbours. James Lewis of Maddison & Lewis Landscapes is building both gardens.

A lovely view of the new garden from Clare, taken the day after we finished planting. The garden now includes a lawn.

The gorgeous rich colour of Knautia macedonica. Photo taken early June 2021.

I visited the garden in early June 2021. Just a couple of months after the planting, everything is looking really good - my clients are looking after their garden beautifully! This is the stunning Paeonia lactiflora ‘Duchesse de Nemours’.

The planting is almost finished and then everything will get a really good soak to settle the soil round those roots and give the plants a good start. Then it all just needs to grow! The most important thing from now on is to keep up with the watering, especially important for those trees.

I set out the plants (based on the planting plan, placing the plants and adjusting as necessary) and my clients and I then planted it all.  It took the best part of two days to plant up the front and back gardens, including breaks and delicious lunc…

I set out the plants (based on the planting plan, placing the plants and adjusting as necessary) and my clients and I then planted it all. It took the best part of two days to plant up the front and back gardens, including breaks and delicious lunch (thank you!) outside in the early spring sunshine. All the trees and plants supplied by Genus Plant Sourcing, a great wholesale nursery.

Planting day!  All the lovely trees, shrubs and perennials have been unloaded from the lorry and we’re putting them next to the border they will be living in. The trees are all a really good size - Ben dug all those holes and planted them.  I think …

Planting day! All the lovely trees, shrubs and perennials have been unloaded from the lorry and we’re putting them next to the border they will be living in. The trees are all a really good size - Ben dug all those holes and planted them. I think it’s great when my clients want to do the planting with me!

The hard landscaping is finished! It all looks really good and my clients are absolutely delighted with it.

I love the stone work and the path with that brick detail. The little gaps are for plants to self seed and give some softness.

Steps and low walls are completed in the lower part of the garden. James has used the original paving and new stone that matches the house.

Walls and steps in the middle of the garden. James has left small gaps for planting pockets, which will be filled with Erigeron karvinskinanus (little daisies). The quoin stones were part of the previous garden, but were hidden away. Now they look gorgeous and add to these beautiful new walls!

I took this photo just before Christmas 2020. James and my client are discussing the garden - there is still plenty to do but the garden is really taking shape!

Removing the concrete seating (see photo below) and dropping the borders down to ground level has made the space look wider. The garden is on 3 different levels, so there will be retaining walls and steps, along with a new lawn at the top.

Along with the planting plan, I provide pictures of the plants so clients can see what it will all look like.

The planting plan. It shows all the trees, shrubs and perennials for the new garden, with each circle representing an individual plant, together with Latin plant names.

I design the planting after discussing with my clients all aspects of planting design, including the kind of feel they want from their garden.

Another border filled with elegant planting.

The garden before. My clients wanted new planting and the ugly white concrete seating removed. Typical of old gardens, it had been added to over time and needed a coherent look and a rather more contemporary feel.

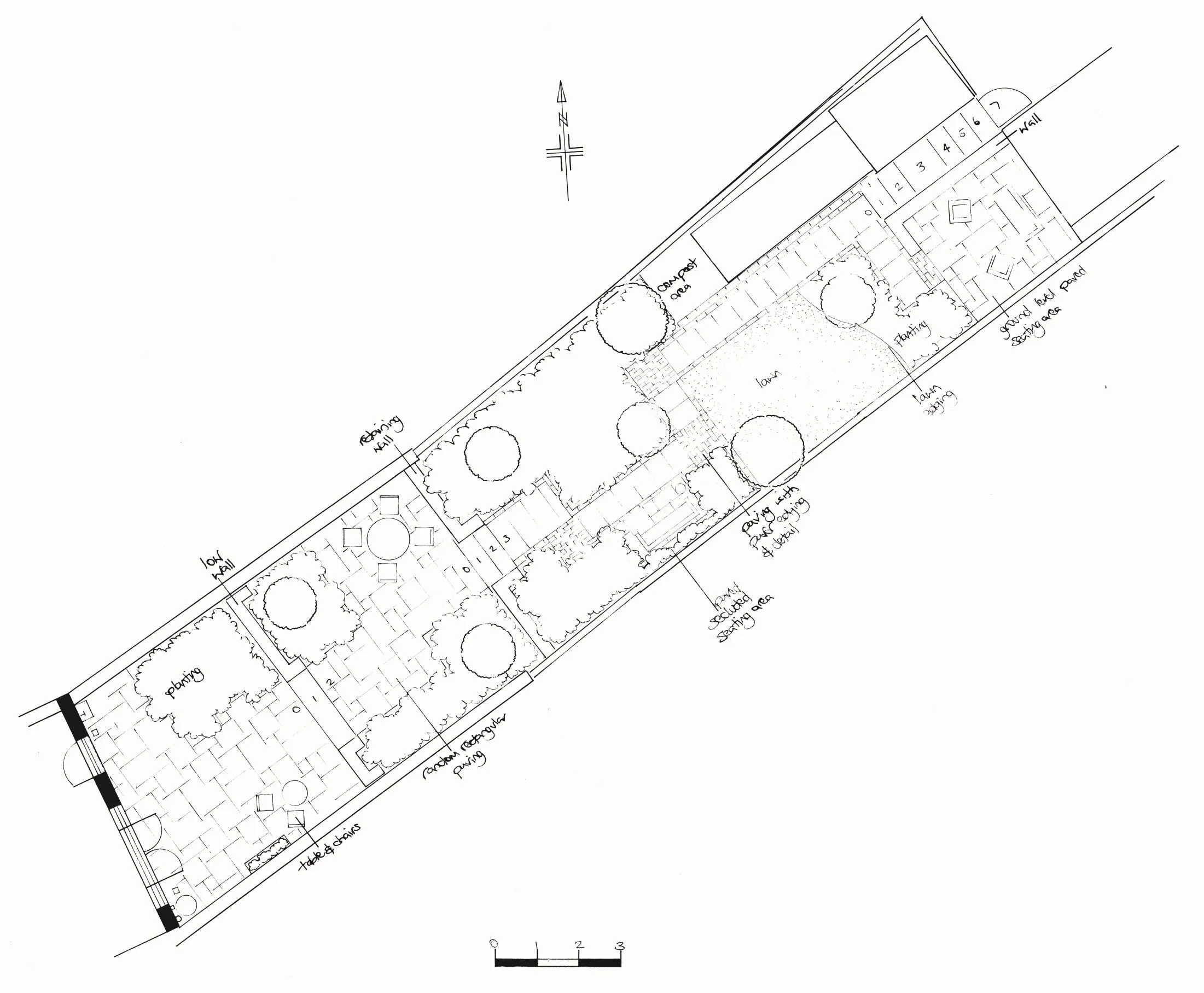
This is the original black & white drawing for my clients’ new back garden.

Back to Projects